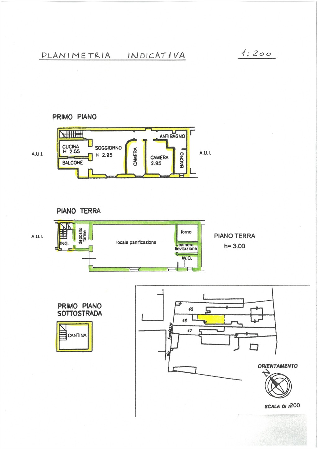
Si vende proprietà costituita da appartamento posto al piano 1° con ingresso indipendente dal piano terra oltre locale adibito a forno posto al piano terra. L’appartamento è costituito da soggiorno, cucina, balcone, due camere da letto, antibagno e bagno oltre a cantina al piano primo sotto strada. Il locale/forno (h. interna catastale ml. 3,00) è costituito da un ampio vano di c.a. mq. 60 oltre zona forno e bagno. Le due unità sono collegate internamente dal vano scala. L’appartamento presenta rifiniture recenti e la proprietà si presenta in buono stato generale.
