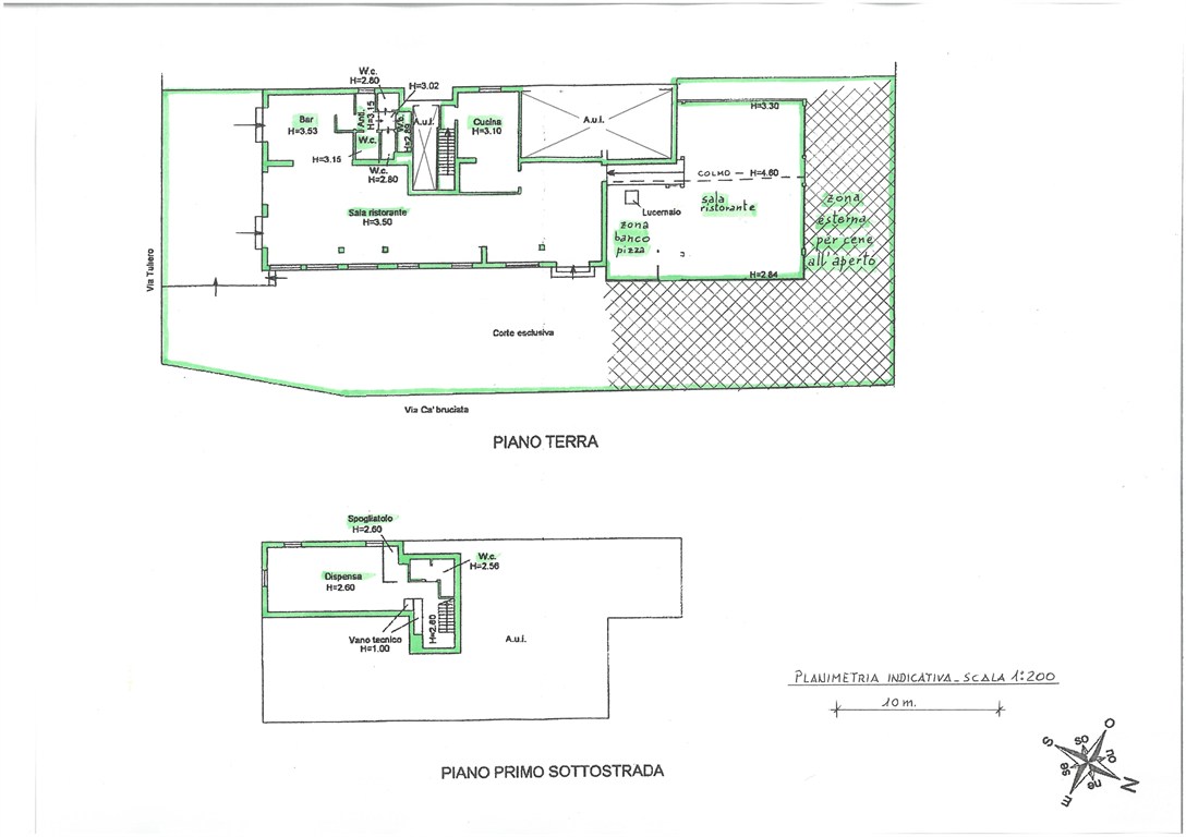
Località Borgo Tuliero, si vendono locali a destinazione ristorante/pizzeria al piano terreno per una superficie di circa 300 mq oltre dispensa al piano interrato di circa mq 50; corte esclusiva recintata e pavimentata di circa 500 mq per un pratico e gradevole utilizzo per cene o pranzi all’aria aperta.
Già presenti arredi zona bar, banco pizza e forno pizza.
