TERRENO EDIFICABILE – FAENZA VIA BOARIA

  • € 600.000
VIA BOARIA, , 48018 Faenza Ravenna
In Vendita

TERRENO EDIFICABILE – FAENZA VIA BOARIA

VIA BOARIA, , 48018 Faenza Ravenna
  • € 600.000

Descrizione

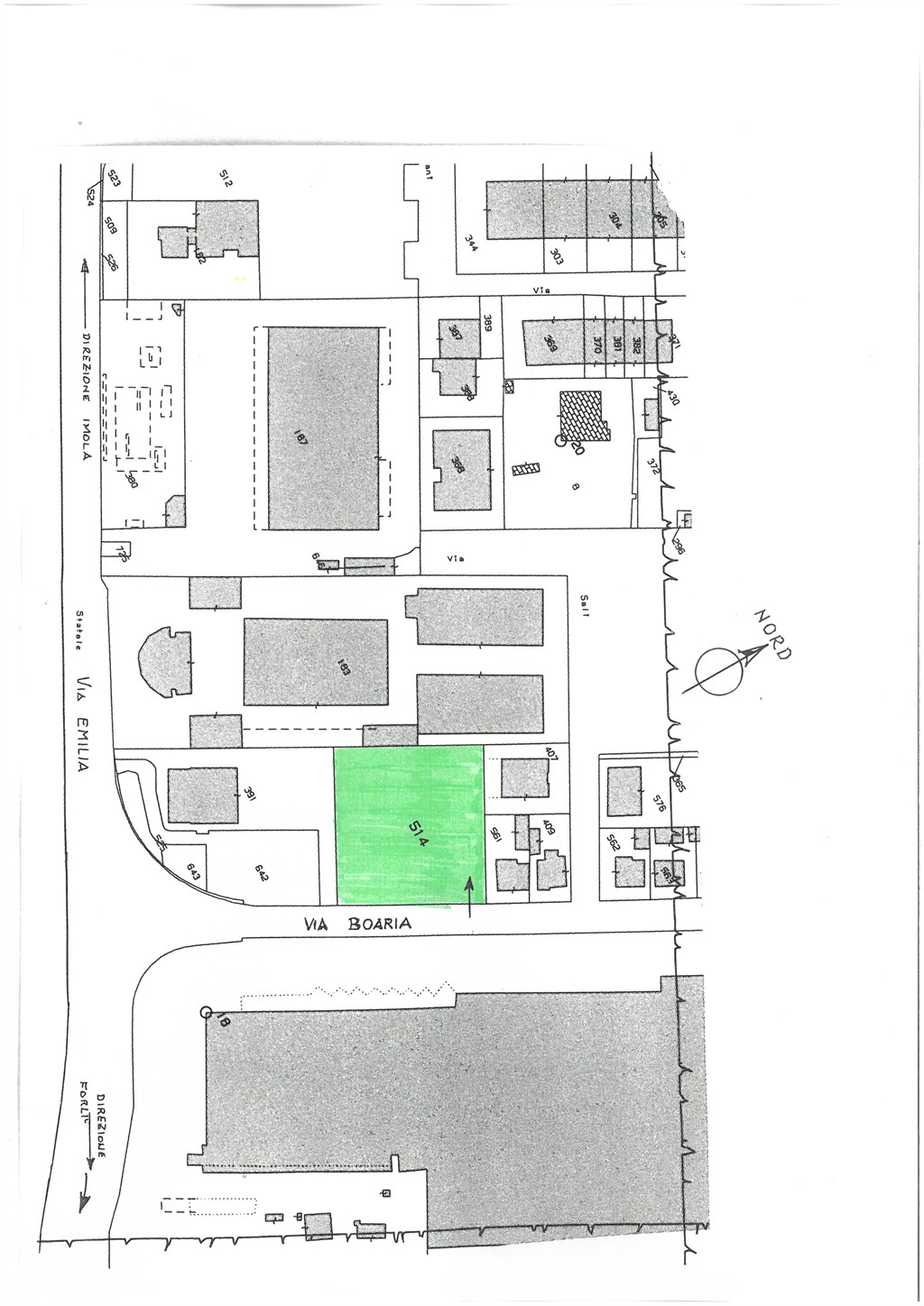
In posizione di grande visibilità, si vende lotto di terreno urbanizzato ad indirizzo commerciale/artigianale. Il terreno è recintato ed è di forma regolare della superficie catastale di mq.3000.

  • Indirizzo VIA BOARIA 48018 Faenza Ravenna
  • Città Faenza
  • Regione/Provincia Ravenna
  • CAP 48018
  • Quartiere Periferia Valle
Icon

Dettagli

Aggiornato su Gennaio 12, 2026 a 7:34 am
  • ID Proprietà: 436
  • Prezzo: € 600.000
  • Superficie: 3000 mq
  • Tipologia: Commerciale, Terreno Commerciale
  • Contratto: In Vendita

Planimerie

Richiedi informazioni

Giorgio Cicognani
Giorgio Cicognani
Baccarini Consulente Immobiliare
+39 0546 662040

Richiedi informazioni su questa proprietà